Contact Us

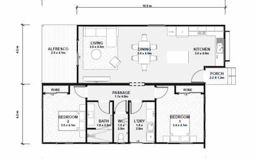
Cooinda 2×1


  • 2
  • 1

Cooinda is an Aboriginal word meaning ‘a happy place’. Cooinda is a charming two-bedroom home featuring open plan living and a spacious kitchen area that provides plenty of entertaining space and natural light. This home is suitable for lifestyle villages, social and community housing.

  • 2 bedroom x 1 bathroom
  • 600mm appliance package
  • Reverse cycle air conditioning
  • Internal wall painting
  • Quality floor coverings
  • Window treatments
  • Internal and external light fittings
  • Combination laundry and bathroom
  • Delivery options available

Cooinda 2×1 Gallery