Contact Us

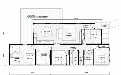
Carinya 4×2


  • 4
  • 2

Carinya is inspired by the Aboriginal word for ‘a happy home’. Carinya is a contemporary four-bedroom home perfect for families, holiday homes or worker accommodation. With an open planned living, dining area and kitchen that connects to an alfresco area and the outdoors, as well as a second lounge area and/or parent’s retreat, all modern day comforts are considered.

  • 4 bedroom x 2 bathroom
  • 600mm appliance package
  • Reverse cycle air conditioning
  • Internal wall painting
  • Quality floor coverings
  • Window treatments
  • Internal and external light fittings
  • Combination laundry and bathroom
  • Delivery options available

Carinya 4×2 Gallery