Contact Us

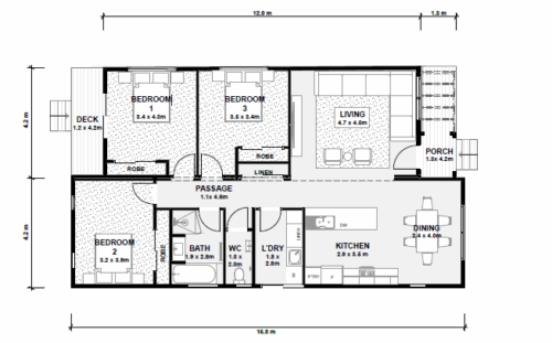
Amaroo 3×1


  • 3
  • 1

Amaroo is an Aboriginal word meaning ‘a beautiful place’. The Amaroo is a compact three-bedroom home featuring open plan living and a spacious kitchen area that provides plenty of natural light and entertaining space. This home is suitable for lifestyle villages, social and community housing.

  • 3 bedroom x 1 bathroom
  • 600mm appliance package
  • Reverse cycle air conditioning
  • Internal wall painting
  • Quality floor coverings
  • Window treatments
  • Internal and external light fittings
  • Combination laundry and bathroom
  • Delivery options available

Amaroo 3×1 Gallery